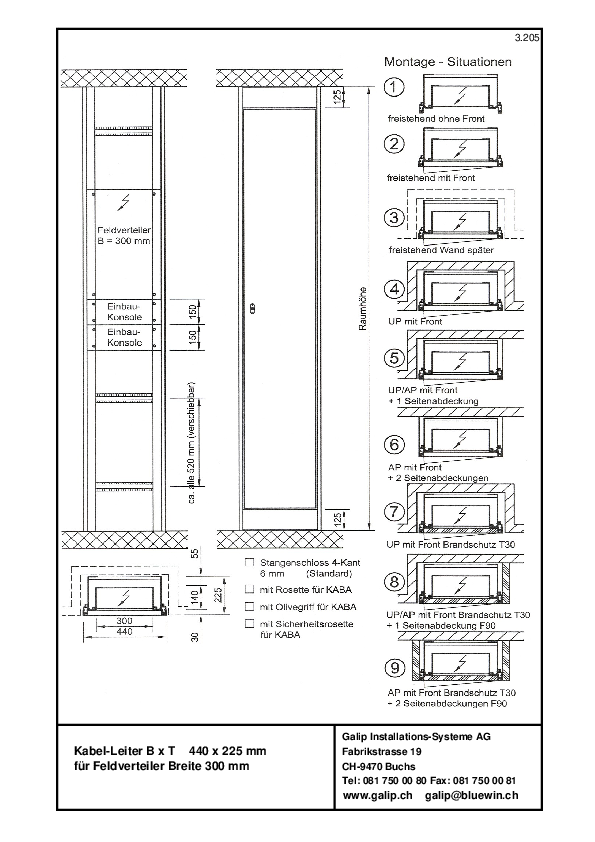
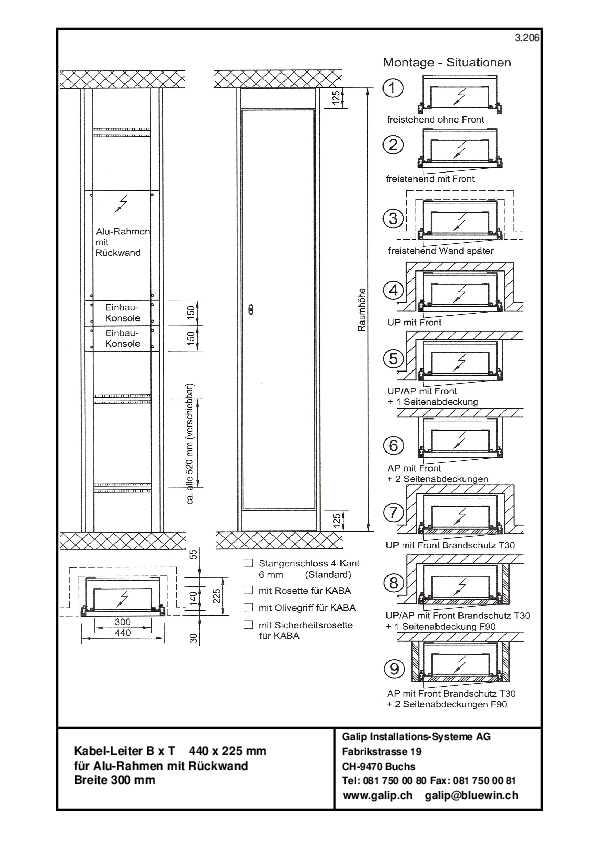
Mit dem Steigleiter-System haben Sie die einfachste Möglichkeit, diverse Verteiler und Apparate schnell und sauber zu montieren. Als Verkleidung wählen Sie Türen oder Steckdeckel.
Kontakt
Galip
Installationssysteme AG
Widenstrasse 1
9464 Rüthi (SG)
Tel. 081 750 00 80
Fax 081 750 00 81
GALIP Unternehmensfilm




















